Preview only — see all hotel photos
See all 57 photos 1 /
57
9.5
40 חוות דעת
Best options for your travel dates
להציג את המלון במפה
Dimoramadonnella
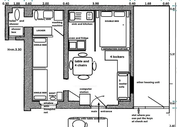
מציעה ויי פיי ברחבי הנכס, דירת דירות בארי Dimoramadonnella נמצאת במרחק של 20 דקות הליכה על קתדרלת סנט סבינוס. דירה זו כוללת 1 חדרי שינה, 1 חדרי אמבטיה ומטבח מאובזר.
אוניברסיטת בארי ממוקם במרחק של 1.1 ק"מ על הדירה. Pinacoteca Corrado Giaquinto נמצא בקרבה ומרכז העיר בארי זה כ-10 דקות הליכה משם. האורחים יכולים לאכול בפאב Fluxus, אשר נמצא בסביבות ה-650 מטר משם.
הדירה כוללת קומקום ותנור. שדה תעופה הקרוב הוא בארי קרול וויטילה, במרחק של 5 ק"מ על דירת דירות Dimoramadonnella, ותחנת אוטובוס Lattazio, Ang. Nizza זה כ-5 דקות הליכה משם. הם כוללים מרפסת המציעה נופים של חצא פנימית.
עוד +
פחות -
נא להמתין, אנחנו בודקים חדרים זמינים בשבילך.
מחפש מלונות
מתקנים
השרותים הפופולריים ביותר
- Wi-Fi
- חוף פרטי
- אסור לעשן
- מיזוג אוויר
- חיות מחמד
מתקנים
כללי:
- חדרים ללא-עישון
- אינטרנט אלחוטי
- חניה
- צ'ק אין/ אאוט פרטי
- ניתן להביא חיות מחמד
- חדר הלבשה
- גישה עם מפתח
ארוחות:
- קומקום
- כלי מטבח
- פינת אוכל חיצונית
ספורט:
- גישה לחוף
- שמשיות חוף
שרותים:
- שירות קניות במכולת
- שירותי חנויות/מסחר
מאפייני חדר:
- מיזוג אוויר
- חימום
- אזור הסבה
- טרסה
- מתקני תה וקפה
- שולחן אוכל
- שירותי גיהוץ
- מכונת כביסה
מדיניות
צ'ק-אין: מ14:00 עד 16:00
צ'ק-אוט: מ07:00 עד 09:00
מספר רישיוןBA07200691000011350,IT072006C200046381
- ילדים ומיטות נוספות
- אין מיטות תינוק בחדר.
- אין בחדר מיטות נוספות.
מפה
אטרקציות מקומיות
ציוני דרך
- Fiera del Levante (3.5 ק"מ)
נמלי תעופה
- נמל התעופה בארי קרול וויטילה (14 ק"מ)
תחנות רכבת
- Bari Central Train Station (900 מטר)
חוות דעת
כתוב ביקורת
100% ביקורות מאומתות
9.5 /10